Italiano
270.000 €

Ufficio pronta consegna

Ufficio in vendita • Trento
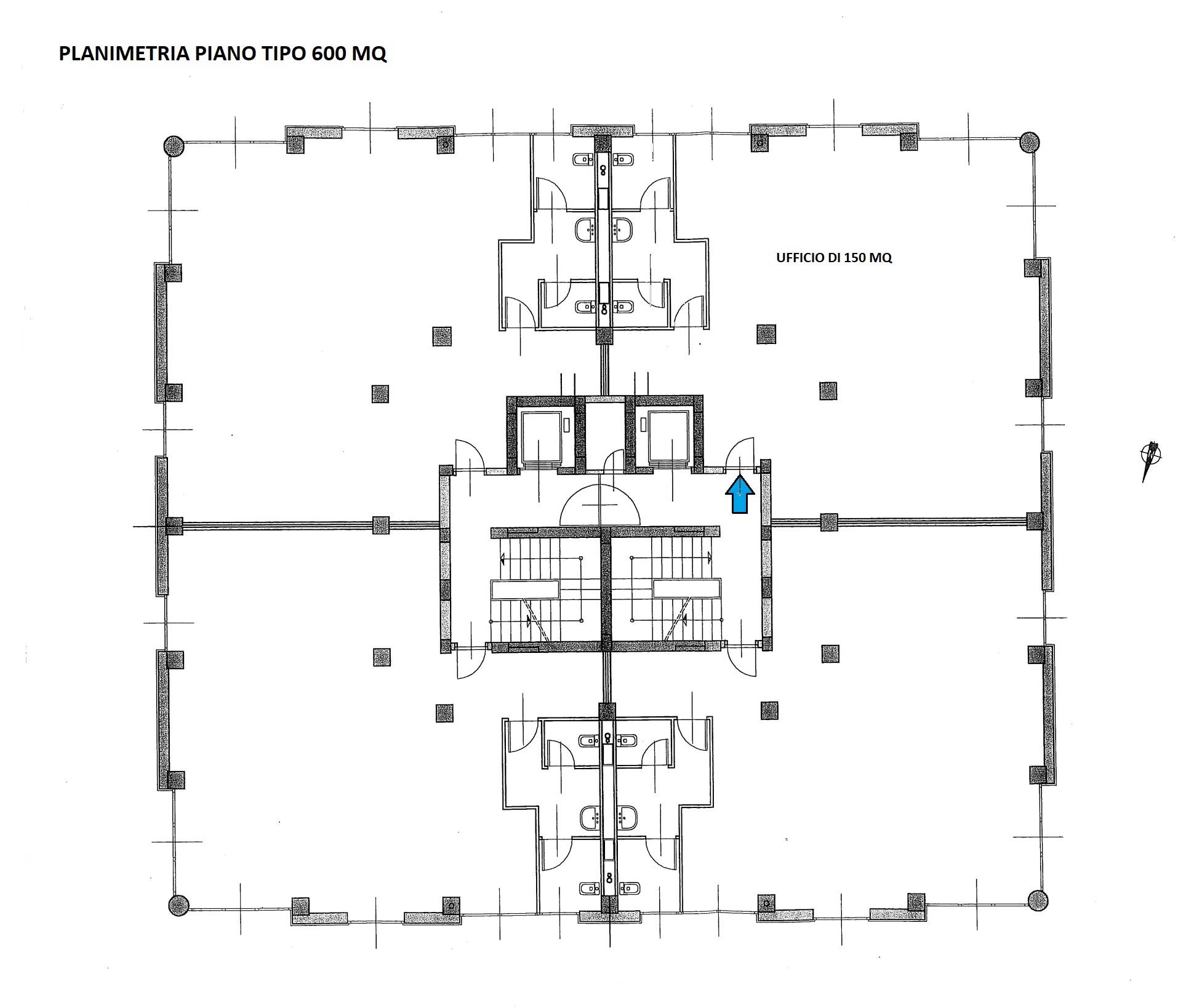
Trento, località Centochiavi, in prestigioso palazzo a solo destinazione uffici commerciali, classe energetica B, vendiamo luminoso ufficio di 150 mq , locale unico più servizi e antibagno. L’ufficio è con pavimenti galleggianti, impianto di riscaldamento e raffrescamento, con ripartitore dei consumi. Dispone di tre posti auto privati coperti al piano interrato e un posto auto scoperto al piano terra. Per informazioni e visite cell. 3357601313.
Caratteristiche principali
Codice
V000500
Città
Trento
Categoria
Ufficio
Prezzo
270.000 €
Locali
1
Camere
1
Bagni
2
Mq
150
Box
1
Mq Box
15
Posti auto
3
Classe energetica
C
21,34
Stato Immobile
Ristrutturato
Grado
Signorile
Posizione
Periferia
Panorama
Vista Aperta
Orientamento
Sud Est
Lati Liberi
2
Arredi
Non Arredato
Riscaldamento
Centralizzato
Tipo Riscaldam.
Ventilconvettore
Tipo Impianto
Altro
Fonte Energetica
Metano
Acqua Calda
Autonoma
Raffrescamento
Fan Coil
Infissi
Alluminio Doppio Vetro
Serramenti
Ottimo
Pavimento
Personalizzato
Accesso Disabili
Nessuna Barriera
Accesso interno disabili
Pieno accesso
Isolamento
Presente
Isolamento acustico
Isolamento pareti

Accessori: Aria Condizionata, Cancello Elettrico, Doppi Vetri, Fibra Ottica, Parco Condominiale, Passaggio Automobilistico, Passaggio Pedonale, Porta Blindata, Video Citofono

Distanze
Posizione
Centro1 km
Istruzione
Scuola materna200 m
Altri servizi
Banca400 m
Richiedi informazioni
Invia
Condividi su
Cookie preference